transformation de deux maisons en appart hôtel
luxembourg
2007 – 2009
empire sarl
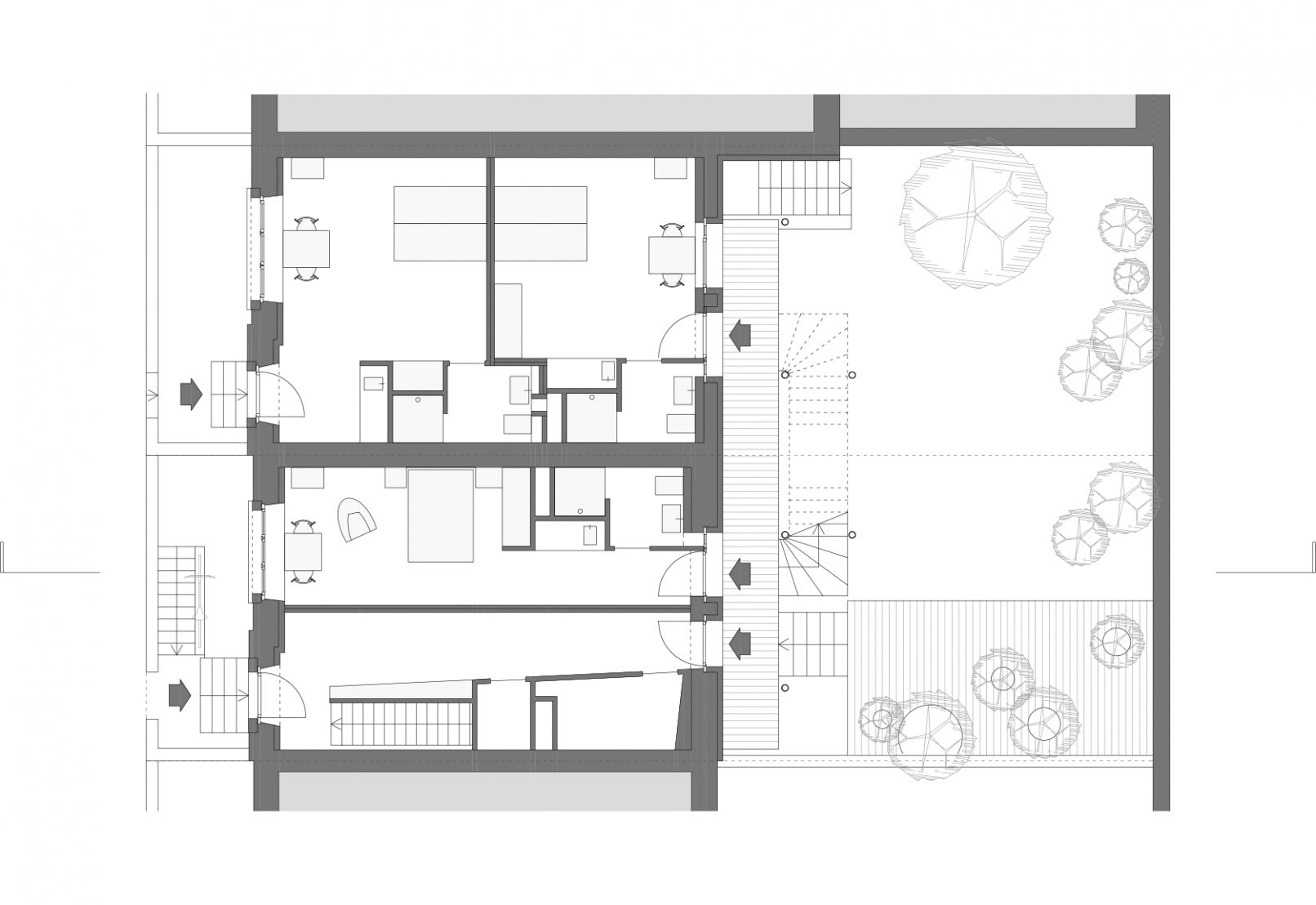
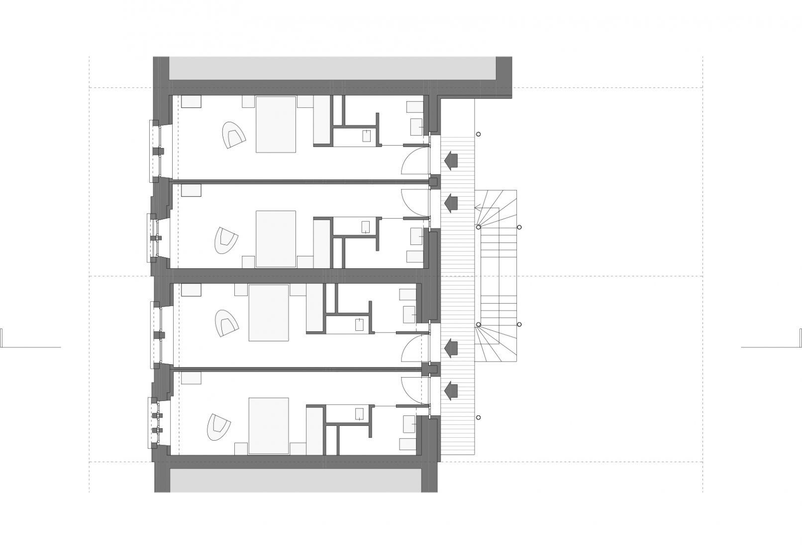
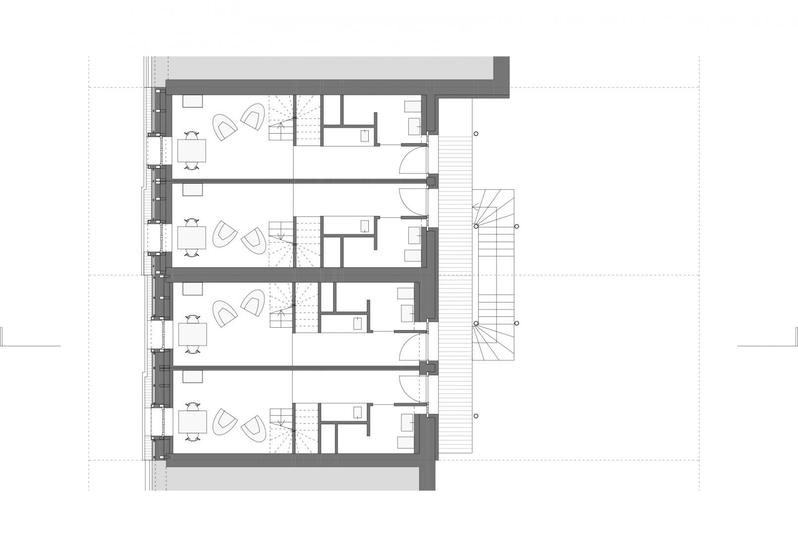
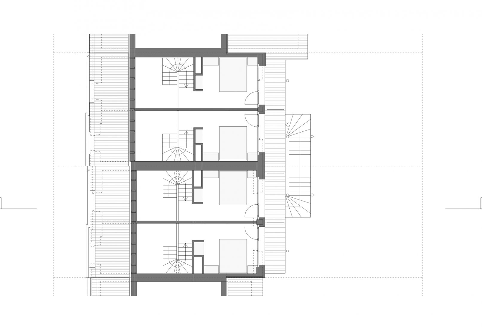
la transformation de deux maisons d’habitation adjacentes a laissé place à un appart hôtel composé de 11 studios, dont 4 en duplex aux niveaux supérieurs, dans le quartier de la gare à luxembourg.
les maisons étant situées dans un ensemble sensible de la ville, les façades côté rue ont été maintenues à l’identique et restaurées. par contre, la façade arrière a été entièrement reconstruite et rehaussée, permettant d’intégrer les logements en duplex. l’accès au différents appartements s’effectue le long de cette façade par une structure métallique avec coursives et escaliers. tous les logements donnent alors sur la rue et répondent ainsi aux prescriptions en matière de sécurité incendie.
un soin tout particulier a été apporté à l’isolation thermique des anciennes maisons afin d’obtenir une classe énergétique favorable pour l’appart hôtel.
l’ensemble dispose d’un petit jardin, avec plateforme en bois à l’arrière des maisons, destiné aux locataires.
photos steve troes – hsa














