maison bt
schwebsange
2009 -2011
client privé
la maison existante datant de 1980 a été rénovée afin d’atteindre les exigences énergétiques en vigueur, de requalifier les aménagements extérieurs tout en offrant une nouvelle entrée à l’habitation.
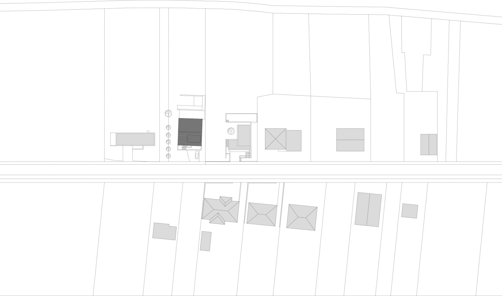
un avant-corps, mis en œuvre en béton vu de teinte noire, intégrant un éclairage, a été ajouté sur l’avant de la construction existante de sorte à reprendre l’alignement sur rue des maisons voisines. il intègre les escaliers menant au niveau d’entrée et souligne, par une large ouverture, l’accès au garage.
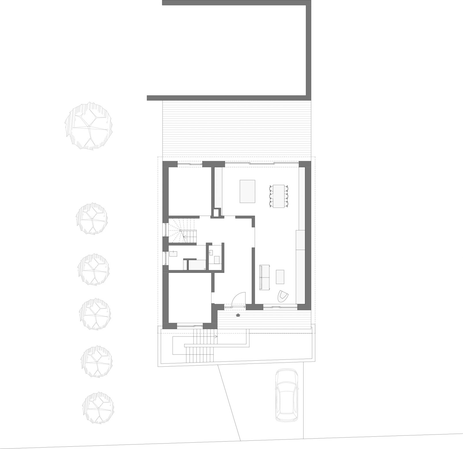
la transformation consistait à transformer et rénover le rez-de-chaussée tout en augmentant sa surface habitable. se sont alors logés dans les combles une chambre, une salle de bain ainsi qu’une zone de ‘bien être’. la toiture a été isolée et recouverte avec des tôles en zinc. au rez-de-chaussée, une grande baie vitrée a été percée dans la façade. orientée vers les vignobles, elle est également source de lumière et permet l’accès depuis la cuisine et le séjour à la terrasse. des nouvelles fenêtres en bois ont été mises en œuvre et la façade a été entièrement isolée et enduite.
photos steve troes








