rénovation et rehausse de l‘ancienne caserne des pompiers en logements
schieren
2020 – 2025
fonds du logement
.
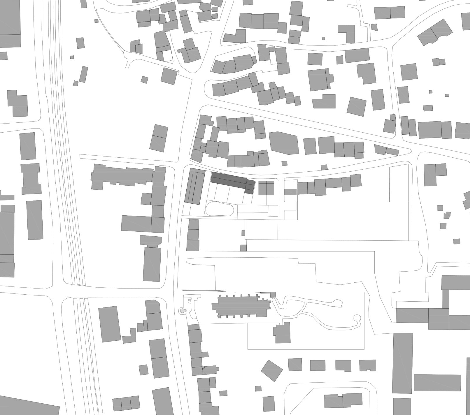
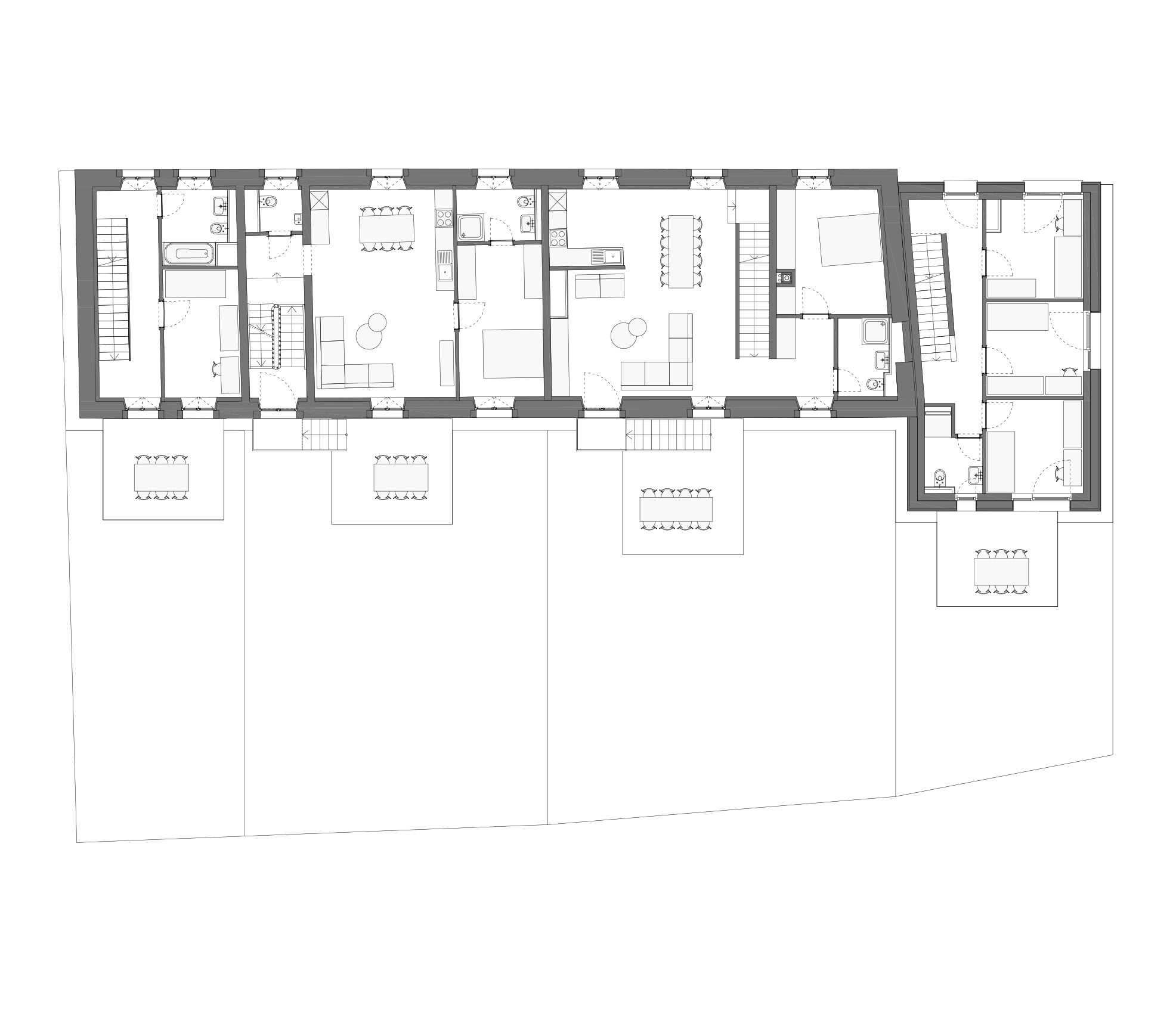
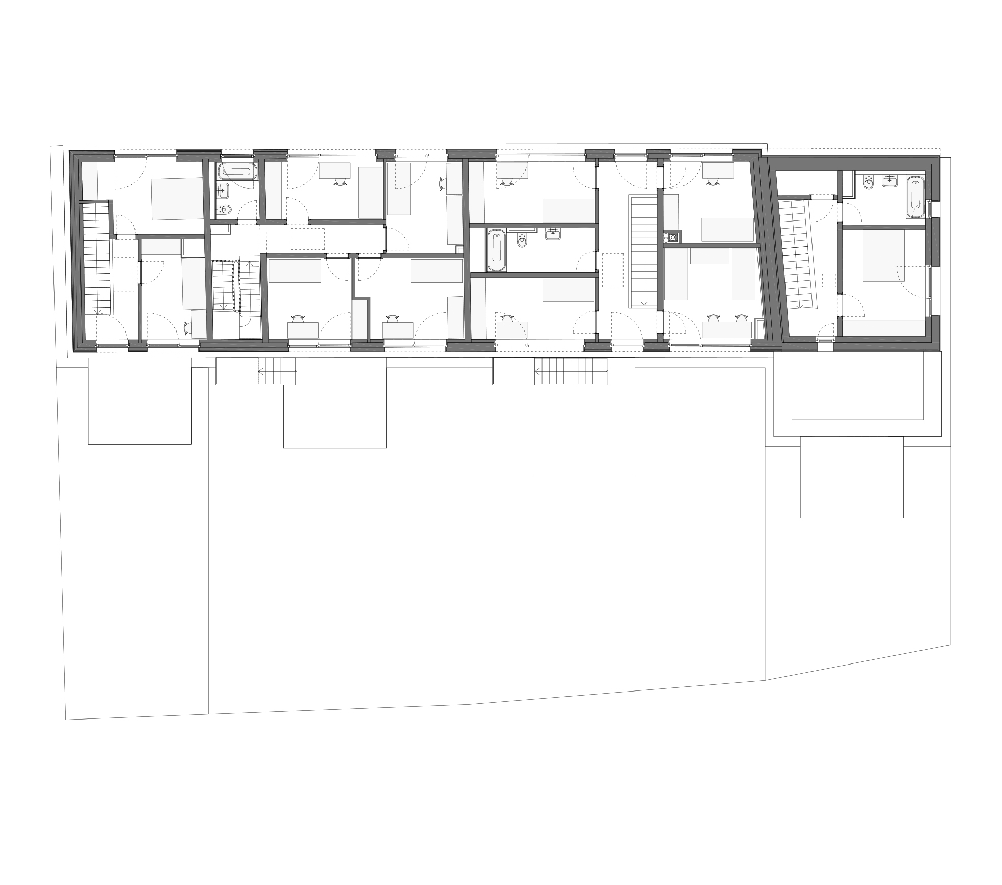
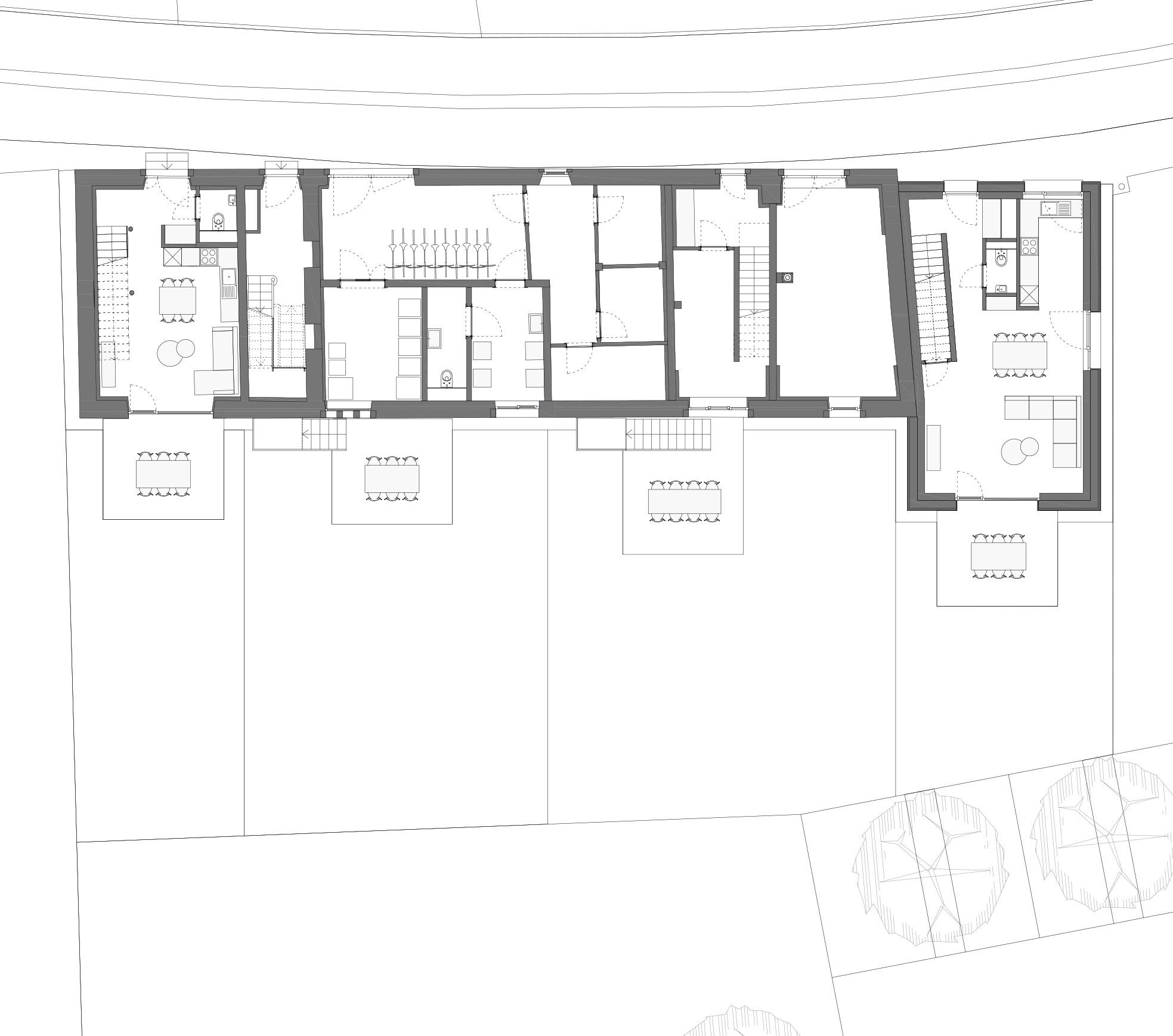
l’ancienne caserne des pompiers, située au cœur de schieren, révèle un caractère unique et un fort potentiel architectural. notre projet de rénovation et de surélévation transforme ce bâtiment patrimonial en quatre logements sociaux contemporains, tout en préservant l’identité historique qui fait la singularité du lieu.
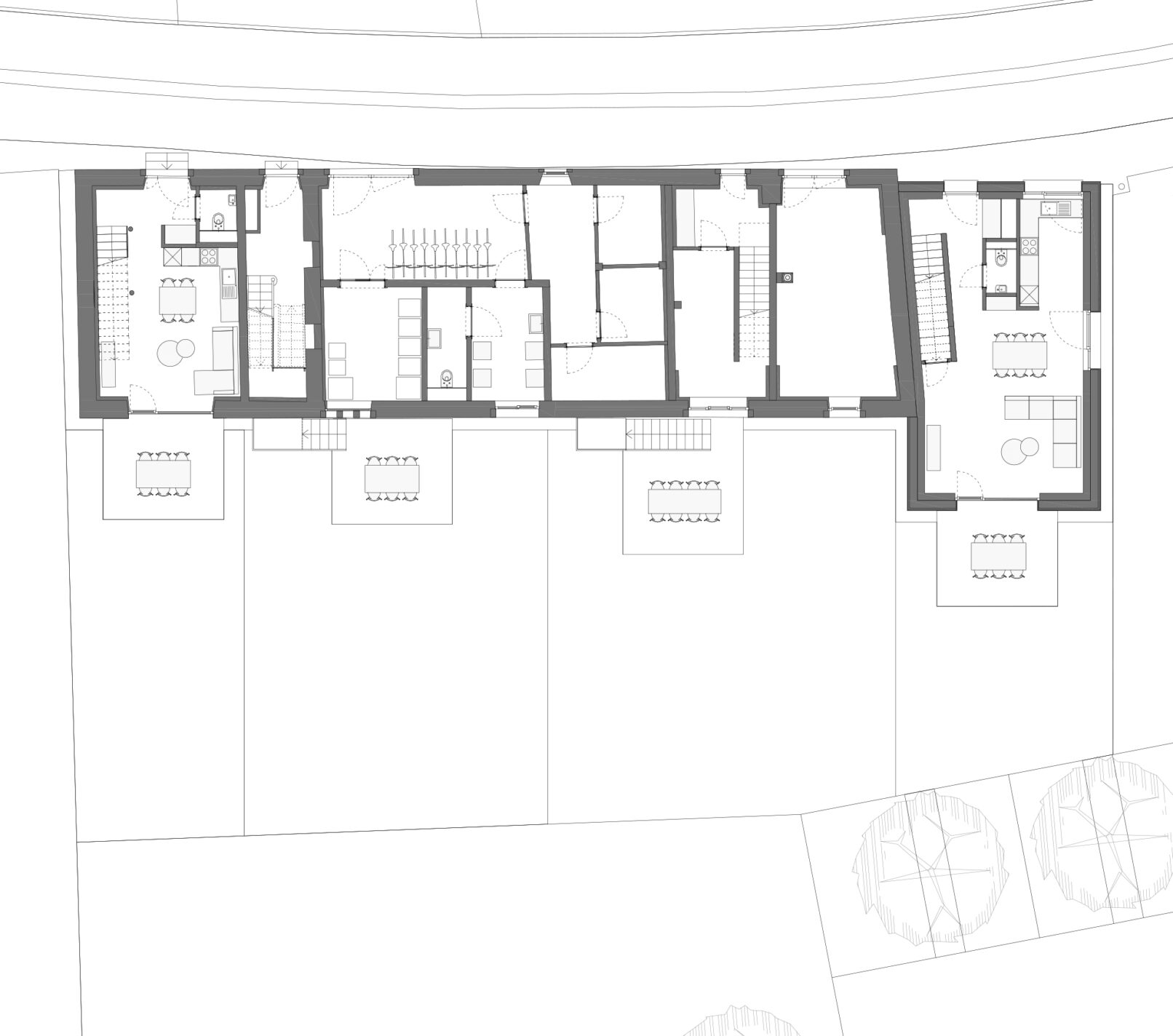
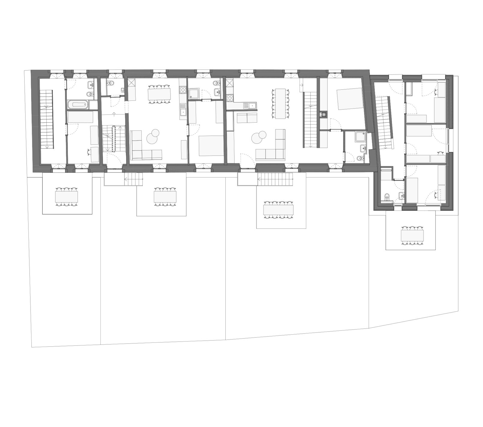
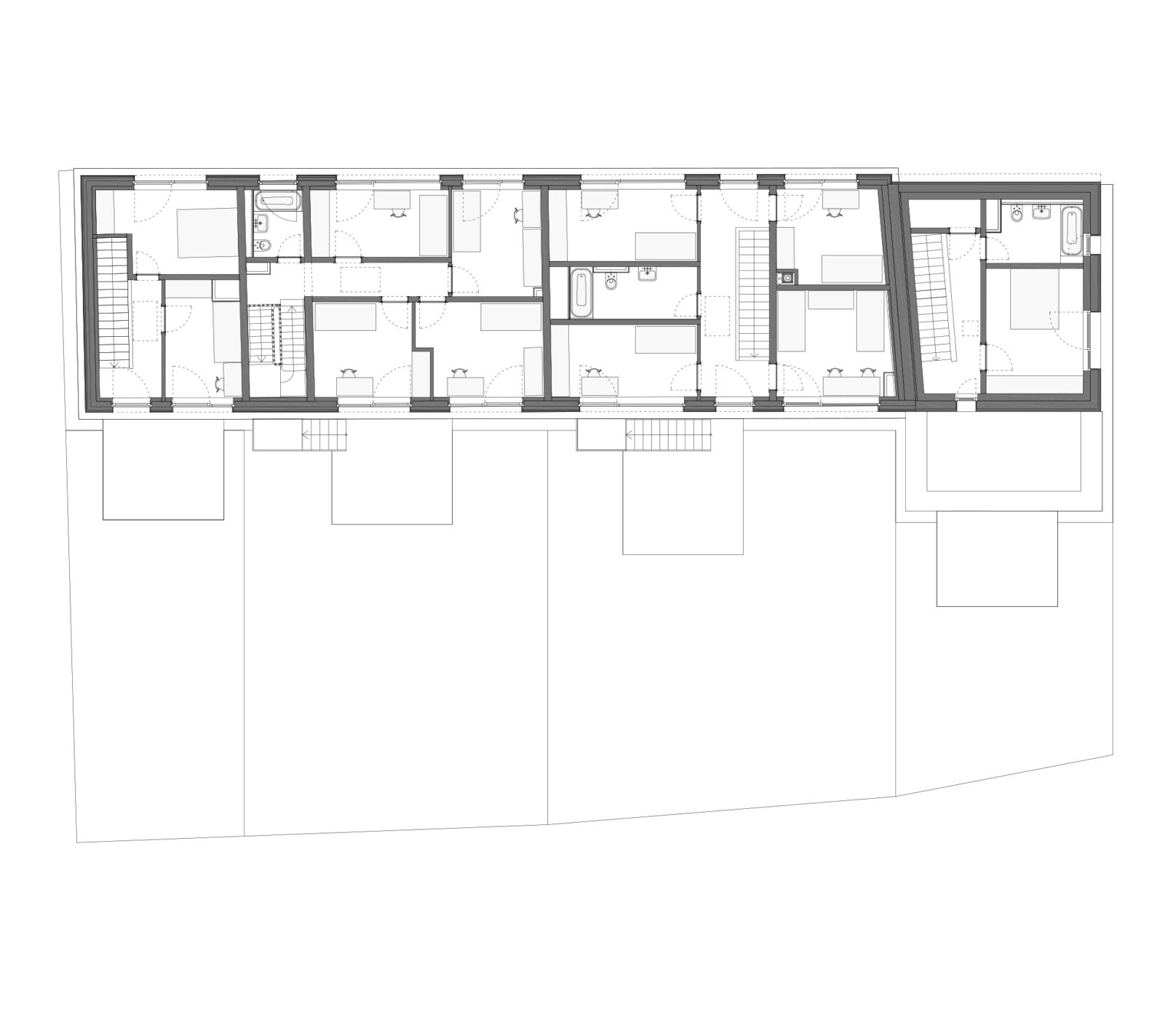
la conception vise à créer des espaces de vie fonctionnels, confortables et lumineux, en trouvant le juste équilibre entre modernité et respect du patrimoine. la surélévation optimise la surface disponible et génère des volumes généreux, parfaitement intégrés à la silhouette existante. à l’extérieur, la façade est restaurée avec soin, tandis que la toiture réhaussée accueille un niveau supplémentaire doté de larges fenêtres bandeaux offrant une vue dégagée sur le paysage vallonné de schieren. à l’intérieur, les quatre logements en triplex bénéficient de distributions optimisées, d’espaces communs généreux et d’une belle hauteur sous plafond. une isolation thermique performante par l’intérieur garantit un confort durable.
ce projet donne une nouvelle vie à cet édifice historique tout en répondant aux besoins contemporains, et fait de cette ancienne caserne un lieu vivant, accueillant et ancré dans son époque.
.
photos linda blatzek










