maison fa
wahlhausen
2010 – 2012
client privé
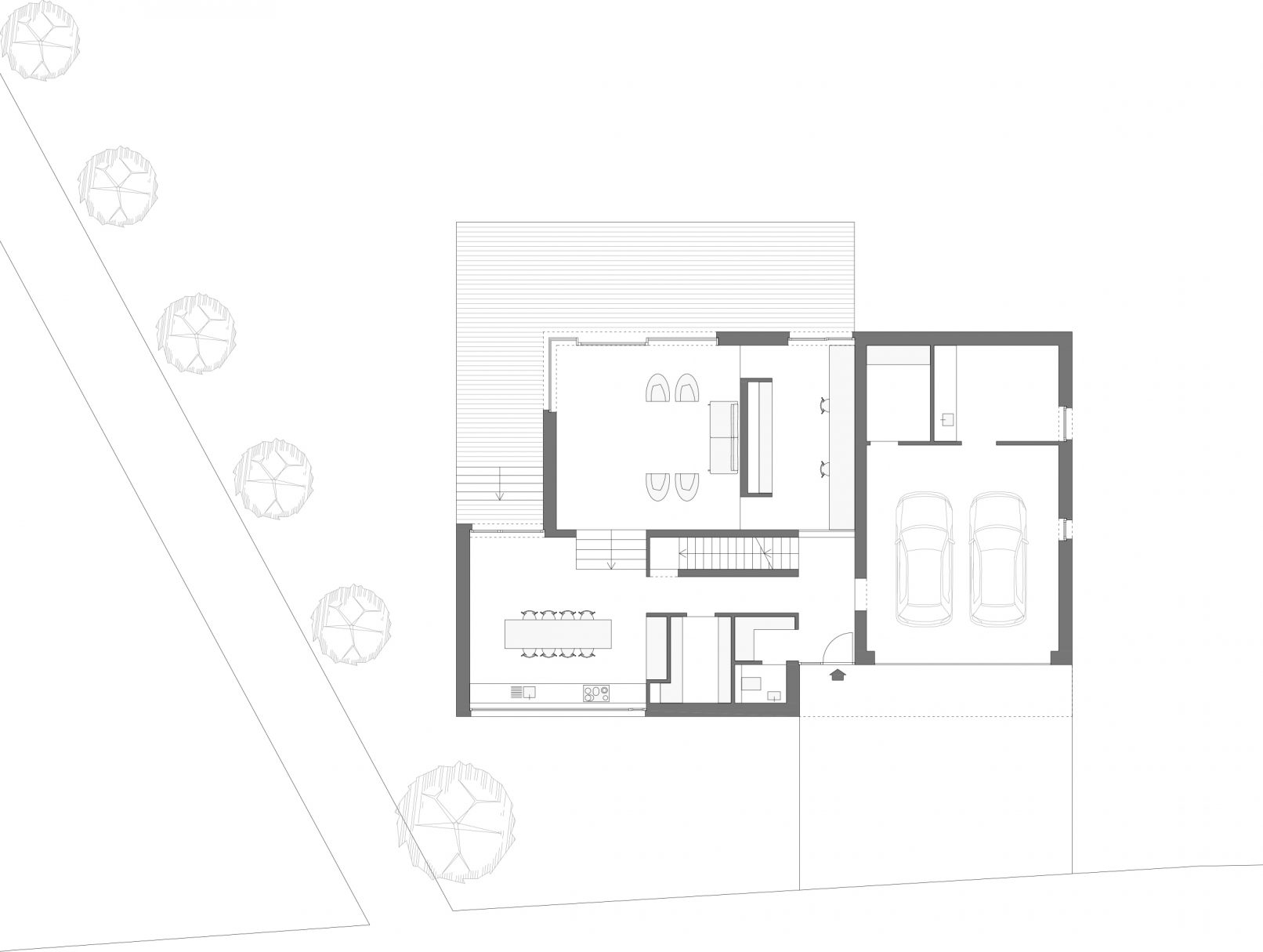
la maison d’habitation s’élève sur une parcelle dominant le village. elle offre une vue imprenable sur le paysage vallonné au nord-ouest. cette situation a généré la position et la forme de la construction dont le volume en long confère à l’ensemble des pièces de vie une vue sur le paysage. de grandes baies prennent place sur la façade nord. ainsi l’intérieur de la maison se poursuit vers l’extérieur, conférant une certaine générosité aux espaces de vie.
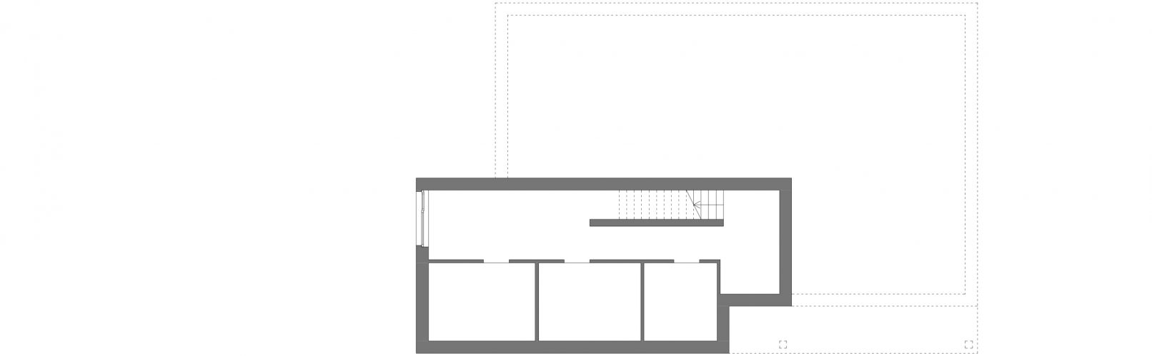
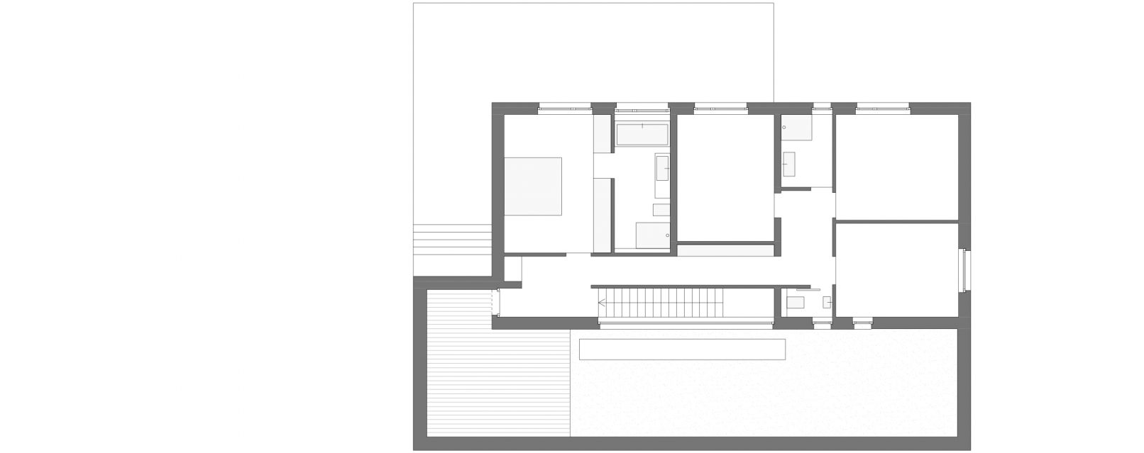
profitant de la topographie du terrain, la partie arrière du rez-de-chaussée dispose d’une sur-hauteur dont jouit le séjour et le bureau attenant. l’étage comprend une grande terrasse orientée sud-ouest, les chambres avec salles de bains ainsi qu’une salle de jeux. afin de profiter au maximum de la vue sur le paysage, les allèges des fenêtres ont été réalisées très basses.
la façade avant se caractérise par deux fenêtres longitudinales, marquant la cuisine et le couloir de l’étage. l’entrée principale et le garage forment une unité.
les matériaux utilisés sont durables et les installations techniques optimisées. la construction est constituée de blocs en béton isolants recouverts d’une isolation extérieure en laine minérale avec enduit minéral. les plafonds sont partiellement réalisés en béton vu et contribuent ainsi à l’inertie thermique. les sols de l’entrée et de la cuisine sont recouverts d’une chape de terrazzo, alors que le reste des sols de la maison est réalisé en parquet chêne, industriel.
photos steve troes












