immeuble résidentiel
luxembourg kirchberg
2009 concours projet lauréat – 2012
stugalux construction sa
les concepts urbanistiques et paysagers du quartier du grünewald génèrent un bâtiment profitant d’un cadre très agréable, caractérisé par des espaces verts publics et privatifs à ses abords. étant donné l’implantation en quinconce des volumes bâtis, l’immeuble résidentiel jouit de vues dégagées, d’autant plus qu’il se situe le long de la rue des labours en bordure donc du quartier.
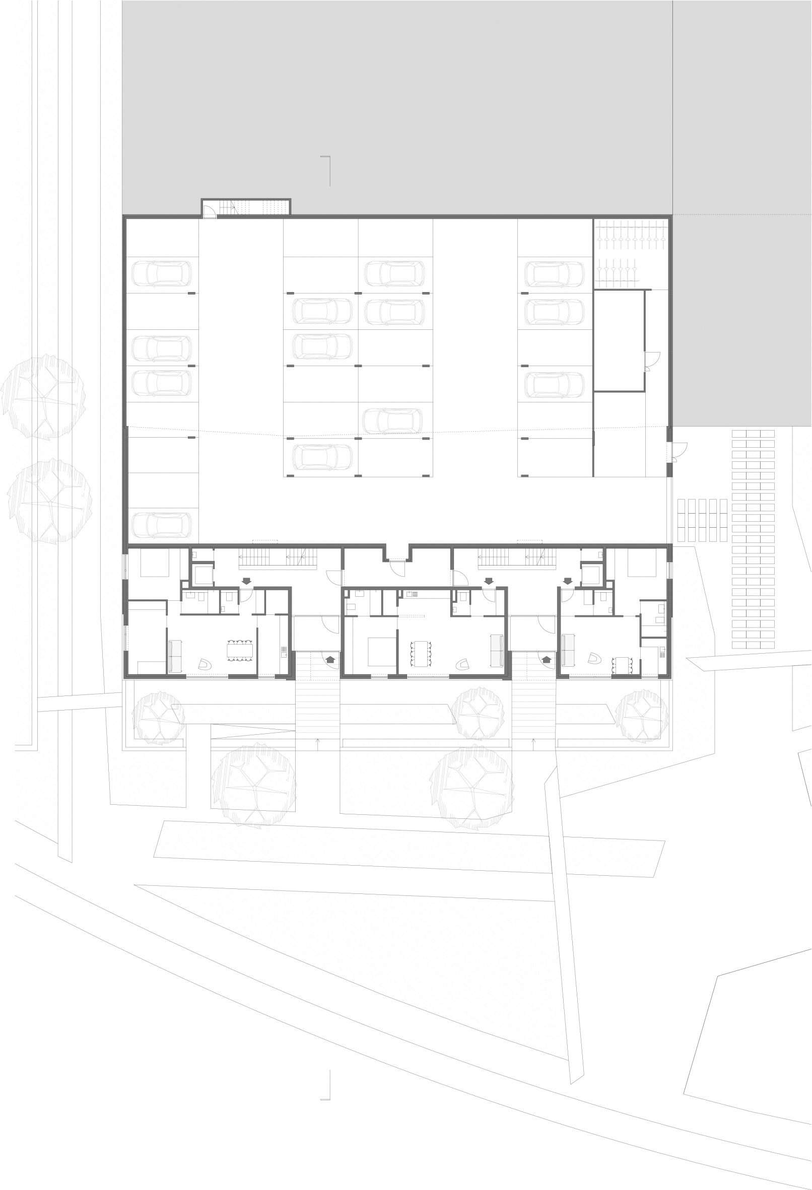
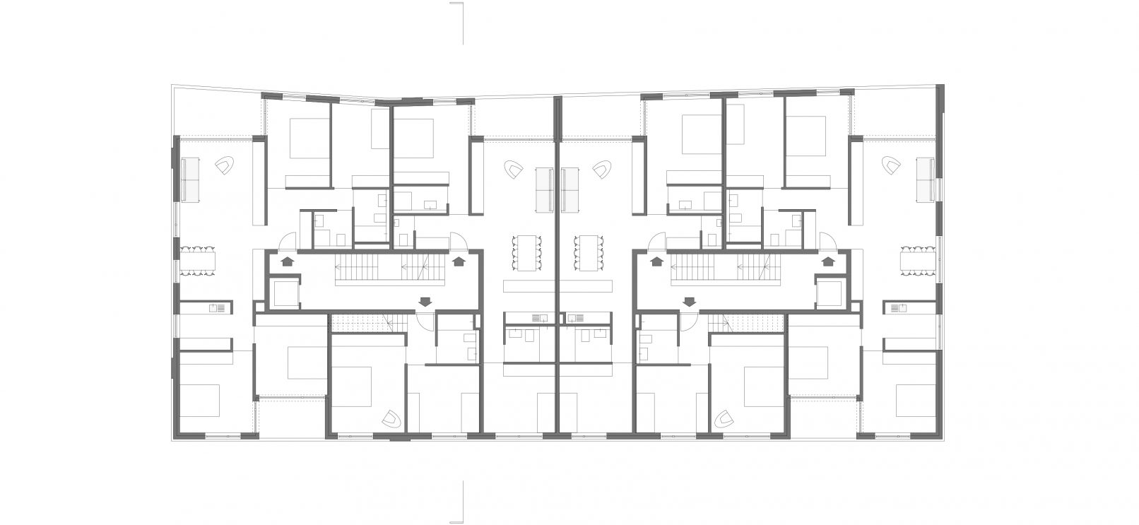
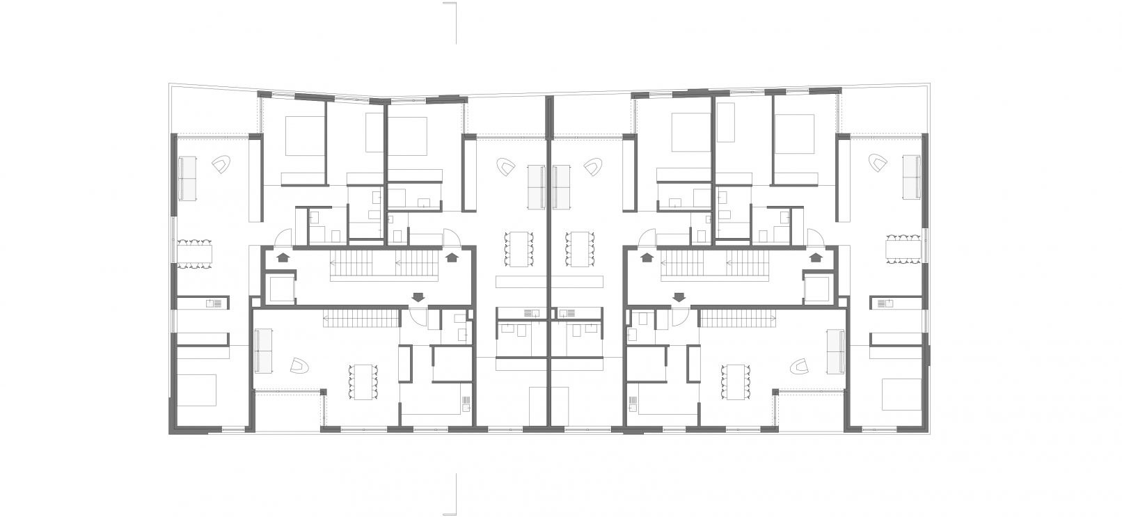
l’immeuble résidentiel comporte 31 logements répartis sur un rez-de-chaussée, un rez-de-jardin et 4 niveaux. le projet propose 10 typologies différentes d’appartements, avec d’une chambre à trois chambres et demie et des surfaces variant de 55,50 à 124,00 m2. le parking souterrain comporte 31 emplacements y compris 1 emplacement pour personnes à mobilité réduite.
les considérations énergétiques de la construction se traduisent par une architecture compacte répondant aux exigences d’isolation thermique. chaque logement est équipé d’une installation de ventilation individuelle à double flux et récupération de chaleur. la cinquième façade de l’immeuble est traitée en toiture extensivement végétale, contribuant à la continuité visuelle de l’espace paysager vu depuis les bâtiments élevés du plateau du kirchberg, ainsi qu’à la rétention des eaux pluviales et à la régulation du climat à l’intérieur des logements.
photos steve troes










